Корпус EB-208-NF от ICOP предназначен для размещения плат серии VDX-6328RD-NF, обеспечивая их защиту и удобство монтажа в различных промышленных условиях.
Ключевые технические особенности корпуса EB-208-NF:
- Сертификаты: ТР ЕАЭС, подтверждающие соответствие российским стандартам безопасности.
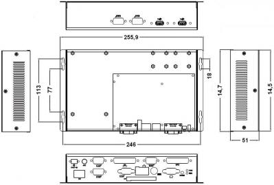
- Тип монтажа: Возможность настольного и настенного крепления, обеспечивая гибкость в установке.
- Кнопки управления: Вкл./Выкл. для удобного включения и выключения устройства.
- Индикация режимов работы: Светодиоды для отображения состояния питания и активности диска.
- Материал корпуса: Сталь, обеспечивающая прочность и долговечность конструкции.
- Соблюдение RoHS: Отсутствие вредных веществ, соответствие экологическим стандартам.
Корпус EB-208-NF используется в промышленных автоматизированных системах, где требуется надежное размещение и защита плат VDX-6328RD-NF. Он подходит для предприятий, занимающихся промышленной автоматизацией, контролем процессов и мониторингом оборудования.
Преимущества корпуса EB-208-NF включают:
- Универсальность монтажа: Возможность установки как на столе, так и на стене, что упрощает интеграцию в различные производственные помещения.
- Простота управления: Наличие кнопок включения/выключения и индикации состояния позволяет оперативно контролировать работу устройства.
- Экологичность: Соответствие стандартам RoHS гарантирует использование безопасных материалов.
Корпус EB-208-NF совместим с платами серии VDX-6328RD-NF, обеспечивая надежную защиту и удобство монтажа в промышленных автоматизированных системах.
Основные характеристики:
| Характеристика | Значение |
|---|---|
| Сертификаты | ТР ЕАЭС |
| Тип монтажа | Настольный Настенный |
| Кнопки управления | Вкл. / Выкл. |
| Индикация режимов работы | Вкл. / Выкл Активность диска |
| RoHS | Да |
| Материал корпуса | Сталь |
| Настольное | Да |
| Настенное | Да |
Вы можете разместить заявку удобным для вас способом:
• через корзину на сайте, добавив выбранные товары;
• по телефону или электронной почте, указанным в разделе «Контакты»;
• через форму обратной связи или онлайн-чат.
Что указать в заявке
Для быстрой обработки заявки просим указывать:
• список оборудования с количеством;
• контактные данные (e-mail и телефон);
• реквизиты компании.
Подробнее см. на странице «Как купить?».
Все финансовые операции проводятся строго в безналичной форме, что гарантирует надежность и соответствие требованиям корпоративных стандартов.
- Форма оплаты. Все расчёты осуществляются исключительно в безналичной форме на основании выставленного счёта.
- Для юридических лиц. Наша деятельность ориентирована на оптовые поставки для компаний. В редких случаях возможна продажа физическим лицам для целей предпринимательской деятельности.
- Для международных клиентов. При поставках за пределы Республики Казахстан НДС не начисляется. Возможны расчёты в USD, EUR и CNY.
- Отсрочка платежа. Для постоянных и проверенных партнёров возможна индивидуальная договорённость об отсрочке.
Мы предлагаем несколько удобных способов получения оборудования. Выберите тот, который лучше всего соответствует вашим потребностям:
- Самовывоз со склада в Алматы.
Быстро и бесплатно для тех, кто находится в Алматы или может самостоятельно организовать забор товара. - Курьерская доставка по Алматы.
Удобное решение для оперативной доставки по городу. - Доставка транспортными компаниями по Казахстану и за рубеж.
Надежный способ отправки в любой регион и за пределы страны, включая удалённые объекты — рудники, месторождения, режимные территории и другие площадки, где требуется соблюдение особых условий безопасности (например, наличие у курьеров касок, жилетов и другого СИЗ).